トップ > プラン > プランI

Plan プラン

  • Premium Floor
  • A-type 1LDK
  • B-type PremiumOne
  • C-type 1LDK
  • D-type S-ClassOne
  • E-type 1LDK
  • F-type 1LDK
  • Executive Floor
  • G1-type ExecutiveOne
  • G2-type S-compact
  • H-type 2LDK
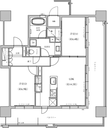
  • I-type 2LDK

I-type 2LDK 専有面積64.64㎡(約19.55坪)

図面(I-type 2LDK)